
Котел КВГ 1.0 МВт газовый (под отечественную горелку ГГ и ГБЛ) в Вологде
Цена 884 000 рублей с НДС
Тип котла | Котел КВГ, Водогрейный, Промышленный | Тяга | Принудительная |
---|---|---|---|
Тип отопительного котла | Газовый | Водяной объем котла, л | 700 |
Бренд | HeatExpert | Объем топочной камеры, м³ | 2.47 |
Вид топки | Газовая горелка | Размер топочной камеры, длина*ширина*высота, мм | 1460х1300х1300 |
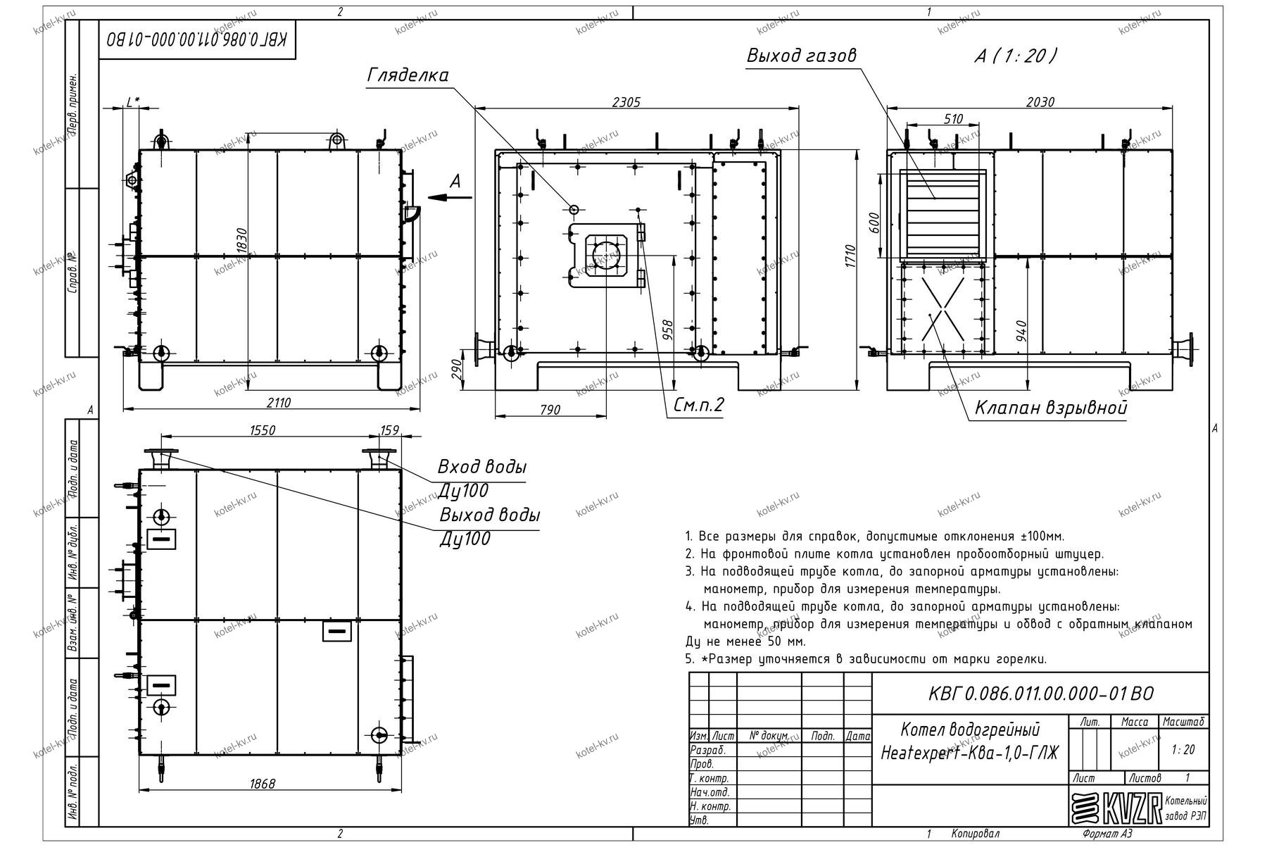
Максимальная тепловая мощность, МВт | 1 | Присоединительные размеры по водяному тракту, Ду | 100 |
Максимальная тепловая мощность, кВт | 1000 | Присоединительные размеры газохода уходящих газов, ширина*высота / сечение, мм/м² | 510х600/0,46 |
Максимальная тепловая мощность, Гкал | 0.86 | Габаритные размеры котельного блока, длина*ширина*высота, мм | 2110*2305*1830 |
Диапазон регулирования, % | 40-100 | Масса, кг | 2900 |
Топливо | Газ | Количество контуров | Одноконтурный |
Низшая теплота сгорания топлива ГАЗ, кКал/нм³ | 9400 | Размещение | Напольный |
КПД (ГАЗ), не менее, % | 91.3 | Тип камеры сгорания | Закрытый |
Расход топлива среднечасовой за отопительный сезон, м³/ч | 56 | Управление | Электронное |
Расход топлива при максимальной нагрузке котла (ГАЗ), м³/ч | 100 | Принцип работы газового котла | Конвекционный |
Расход условного топлива, кг/ч | 135 | Энергонезависимый | нет |
Давление рабочей среды, МПа (кгс/cм²) | 0.3-0.6 | Тип питания | Трехфазное |
Расход теплоносителя среды, м³/ч | 34 | Встроенный циркуляционный насос | нет |
Гидравлическое сопротивление при перепаде t, МПа (кгс/cм²) | Не более 0.07 (0.7) | Встроенный расширительный бак | нет |
Аэродинамическое сопротивление, Па (мм. вод. ст.) | 220 | Отапливаемая площадь, м² | 7700-11000 |
Давление в топке, Па | 20 | Отапливаемый объем, м³ | 22900-32900 |
Расход уходящих газов, м³/ч | 2100 | Энергоэффективность | Высокая |
Температура уходящих газов, °C | 163 |
Это устройство работает со вспомогательным оборудованием, которое приобретается отдельно. Если вы хотите сразу узнать стоимость всей установки, добавьте заинтересовавшие вас позиции в корзину. Чтобы точно расчитать стоимость доставки до вашего объекта, укажите его адрес в корзине и оправьте нам заявку. Обычно мы отвечаем в течение дня.


Водогрейный котел КВГ 1.0 МВт в Вологде
Газовый котел КВГ 1.0 МВт гладкотрубной трехходовой конструкции имеет существенные преимущества перед жаротрубными моделями благодаря следующим конструктивным особенностям:
- Гладкотрубная поверхность нагрева воды имеет развитую поверхность, при компактных внешних размерах плотный пучок конвективных труб, расположенных в шахматном порядке и омываемый дымовыми газами в поперечном направлении обеспечивает высокую тепловую эффективность котельного блока. Газы в котле делают три хода – в топке, в первом конвективном пакете и во втором.
- Существенное достоинство гладкотрубной конструкции - надежность. Трубная система собирается из труб ввариваемых в коллектора, также охлаждаемые теплоносителем, а не в трубные доски. В таком теплогенераторе отсутствует давление перегретых труб на трубную доску и напряжения в сварных швах, вызывающее деформации и разрыв швов.
- Быстрый выход на режим и высокая маневренность – благодаря малому водяному объему.
- В водотрубных котлах теплоноситель поступает через коллектор с перегородками и распределяется по трубной системе равномерными потоками с высокой скоростью. Такая схема движения потока воды исключает образование застойных зон, локальный перегрев поверхностей нагрева, местное выпадение солей и отложения накипи, и делает агрегат менее требовательным к качеству питательной воды.
- И наконец главное - водотрубный гладкотрубный котел КВ Г 1,0 МВт на газе безопасен. Даже при внезапном снижении давления внутри теплогенератора до атмосферного не произойдет выделение пара, и он не взорвется.
Параметры работы
КВГ 1.0 МВт котлы стальные газовые отопительные водогрейные предназначены для получения горячей воды номинальной температурой на выходе из котла 95 (115) °С рабочим давлением до 0,6 (6,0) МПа (кгс/см), используется в системах централизованного теплоснабжения на нужды отопления и горячего водоснабжения.
Котлы водогрейные КВГ 1,0 МВт предназначены для работы в открытых и закрытых системах теплоснабжения с принудительной циркуляцией воды. Вид сжигаемого топлива: газ, дизель.
Давление газа перед горелкой может быть как среднее, так и низкое.
Устройство котла КВГ 1.0 МВт
Стальной газовый водогрейный котел КВГ 1.0 МВт имеет газоплотные топочную камеру и конвективную часть. В заднем экране топочной камеры выполнено отверстие, в котором установлен взрывной клапан, предохраняющий конструкцию от разрушения при возникновении избыточного давления в топочной камере.
Промышленный водогрейный котел КВГ 1.0 МВт устанавливается на раму. Рама котла выполнена из швеллера и ставится на опоры. Опоры котла крепятся к ровной подготовленной поверхности анкерными болтами. Блок горелки закрепляется на фронтовой плите с помощью болтовых соединений. Фронтовая плита закрепляется при помощи шарниров и выполняет функцию люка, что позволяет осуществлять доступ в топочную камеру котла для осмотра и ремонтных работ без разбора обшивки и изоляции.
Изоляция выполняется из жаростойких материалов и стальных листов.
Крепления и амбразура под горелку на фронтовой плите изготавливается под выбранную заказчиком горелку. За счет универсальной конструкции топочной камеры, газовый и жидкотопливный водогрейный котел КВГ 1 0 МВт может работать с широким рядом горелочных устройств отечественного и импортного производства.
Выход газов в котле происходит сверху. В случае необходимости возможно изготовление опускного газохода.
Применяемые горелочные устройства водогрейного котла КВГ 1,0 МВт:
- модель работает с отечественными горелками ГГ, ГБЛ.
Данные типы горелок имеют более широкий угол раскрытия факела.
Котел работает под наддувом, без дымососа.
Гарантии изготовителя
На заводе изготовителе газовый котел КВГ 1,0 подвергается гидравлическому испытанию давлением 2,0 МПа (9 кгс/см2).
Гарантийное обслуживание включает в себя бесплатное устранение скрытых заводских дефектов, замену деталей и узлов вышедших из строя в период гарантийного срока при условии монтажа и эксплуатации оборудования Покупателем в соответствии с его назначением, технической документацией, техническими нормами, правилами ввода в эксплуатацию и эксплуатации данного оборудования.
Срок эксплуатации водогрейного котла 10 лет.
Купить котел квг 1.0 мвт газовый (под отечественную горелку гг и гбл) в Вологде
Водогрейные котлы, мощностью от 175 КВт до 4 МВт используются для отопления производственных, административных и жилых зданий. Котельный завод производит и поставляет весь перечень сопутствующего котельного оборудования- насосы, газоходы, автоматику, дымососы, дымовые трубы, циклоны и прочее. Специалисты нашего завода бесплатно подберут сопутствующее оборудование, а в случае необходимости, выполнят проектирование, монтаж и пуско-наладку котельной установки.
Предлагаем вам подобрать мощность водогрейного промышленного котла по отапливаемой площади и объему, с учетом типа строения и данных о температуре в регионе и в Вологде, вида топлива.
Выбор водогрейного котла для котельной производится по каталогу отопительного оборудования нашего Котельного завода с помощью калькулятора подбора мощности. Водогрейные котлы отопления для промышленных предприятий предлагается выбрать из модельного ряда газовых, дизельных, мазутных, твердотопливных угольных и дровяных котлов, с ручными и автоматическими топками мощностью от 150 кВ до 4 МВт, и температурой нагрева теплоносителя до 115 градусов.
Подбор мощности водогрейного промышленного котла для отопления учитывает:
- температуру в самую холодную пятидневку в отопительный сезон. Для каждого региона РФ температура различна, данные берутся из СП 131.13330 «Строительная климатология»;
- тепло, необходимое для возмещения потерь тепла через ограждения, окна, двери здания и тепловые потери через не плотности строения и открываемые двери;
- температуру воздуха внутри помещений. Для различных типов и назначений строений она существенно отличается:
Тип отапливаемого строения | Температура внутри помещения |
---|---|
Жилые строения и административные здания | + 20 С° |
Больницы, детские сады | + 22 С° |
Учебные заведения, предприятия общепита, учреждения культуры, школы | + 16 С° |
Магазины и депо | + 15 С° |
Кинотеатры | + 14 С° |
Гаражи | + 10 С° |
Бани | + 25 С° |
- объем строения. Для определения наружного объема строения площадь по наружным стенкам строения на уровне первого этажа перемножается на высоту. Для панельных домов высота определяется: от уровня пола (нулевой отметки) до верхней плоскости теплоизоляционного слоя чердачного покрытия. Для остальных зданий высота определяется от уровня земли. Подбор мощности для отопления различных по назначению строений считается отдельно. Все полученные значения мощности складываются.
Подбор мощности водогрейного промышленного котла производится для общей суммарной мощности каждого отдельно стоящего задания.
Если вам требуется подобрать мощность котла в Вологде для котельной с учетом вентиляции здания, горячего водоснабжения объекта, потерь в теплотрассе - необходимо производить более подробный расчет. Данный расчет мы можем произвести для вас бесплатно. Отправьте опросный лист и заявку на электронный адрес sale@kotel-kv.ru или позвоните по телефону 8 (800) 551-70-98.